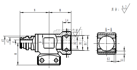
F型三通是液壓系統管路連接的金屬件,使得液體能順利進入到各自獨立的分支系統的管路,依靠液壓元件及執行機構來實現液壓支架所需的各種動作,三頭均可連接膠管接頭。

| 序號 | 圖號 | 產品名稱 | 規格型號 | 單位 |
|---|---|---|---|---|
| 1 | F-10/10/10G | F型三通 | KJ10-10-10G | 個 |
| 2 | F-13/13/13G | F型三通 | KJ13-13-13G | 個 |
| 3 | FB-19/19/19G | F型三通 | DN20-20-20G | 個 |
| 4 | FB-10/10/10G | F型三通 | DN10-10-10G | 個 |
| 5 | FB-12/12/12G | F型三通 | DN12-12-12G | 個 |
一、F型三通的主要技術參數:


二、F型三通的用途及功能:
F型三通是液壓系統管路連接的金屬件,使得液體能順利進入到各自獨立的分支系統的管路,依靠液壓元件及執行機構來實現液壓支架所需的各種動作,三頭均可連接膠管接頭。
三、F型三通的使用位置:
用在液壓系統的各種管路當中和閥管之間等。
四、F型三通在運輸、安裝或者使用時注意事項:
1.運輸中要保護好管接頭不受損壞、銹蝕等,管接頭孔要用塑料帽、堵保護好,在工作現場安裝時才能去掉。
2.拆卸或更換時,應在相關液壓缸卸載后操作,防止傷人;接通各個液壓管路前,放出少許乳化液沖刷系統和液壓部件,以免贓物帶入系統。
3.在進行檢修工作中,絕不能帶壓拆卸,需要拆卸更換時,必須關閉主進液管路。
五、F型三通的常見故障、原因與排除方法:
| 部位 | 故障現象 | 可能原因 | 排除方法 |
| F型三通 | 管接頭漏液 |
1、 密封面磨損或尺寸超差 2、 保存和運輸時,密封面被損壞或銹蝕; 3、 更換時猛砸硬插,擠碰接頭。 |
1、直接更換 2、保存和運輸時,必須保護密封面不被損壞和銹蝕; 3、更換時不要猛砸硬插,安好后不要拆裝過頻,平時注意整理,防止擠碰接頭。 |
![[field:title function='html2text(@me)'/]](/static/upload/image/20250915/1757906885102576.png)
![[field:title function='html2text(@me)'/]](/static/upload/image/20250813/1755066320148657.png)
![[field:title function='html2text(@me)'/]](/static/upload/image/20250813/1755066237177295.png)